RRUGA “QEMAL STAFA”
Shitet apartament 1+1 në një zonë mjaft të mirë, shumë afer me Sheshin “Skënderbej” si dhe me Pazarin e Ri. Zona është e organizuar shumë mirë dhe aty gjendet një rrjet i rregullt shoqëror, tregtar, arsimor e shëndetësor, me rrugë nga të katër anët, që të nxjerrin shumë lehtë si në qendër edhe në unazë. Një ndër zonat më të zhvilluara dhe me kërkesë të lartë banimi dhe zhvillim biznesi.
Zona ofron supermarkete, shkolla, kopshte, çerdhe, bar/kafe, restorante, shërbime të ndryshme etj.
Apartamenti ndodhet në një pallat të ri, me 3 kate nëntokë dhe 9 kate mbitokë, me punime shumë të mira, me ashensor dhe administrim shumë i mirë.
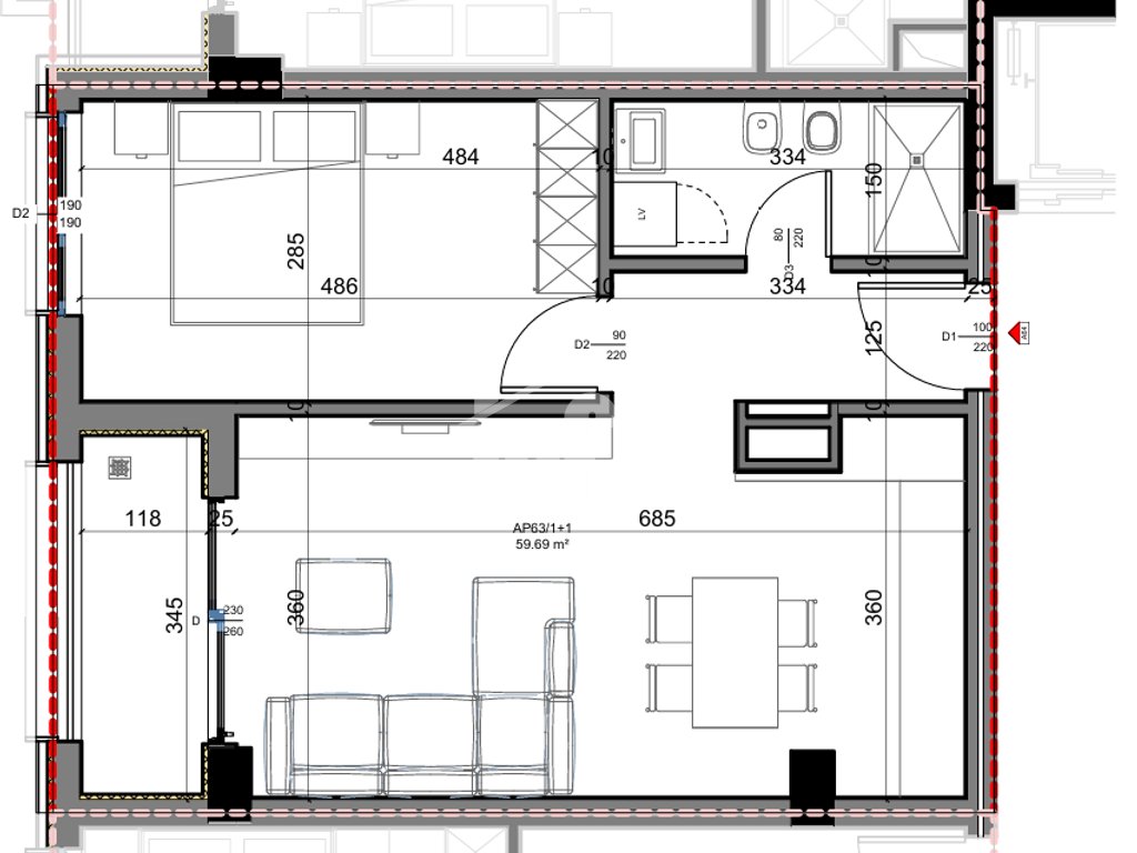
Apartament 1+1 në shitje, me sipërfaqe neto 59.69 m2 (bruto 67.86 m2), kati i 8-të, me orientim jug-perëndim. Organizohet nga ambient ndenje + gatim + ngrënie, dhomë gjumi, tualet dhe ballkon.
Ofron dhe 1 post parkimi në katin -1 me vlerën 32.000 euro.
Afati i përfundimit Prill 2028.
https://inf-93.com/property/3944/prane-pazarit-te-ri-inf1745.html