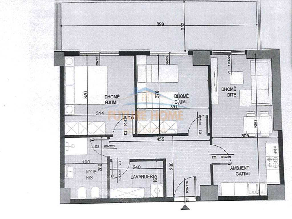
Shitet, Apartament 2+1, Fusha e Aviacionit, Tiranë.

  • 169.200€
7 Fusha Aviacionit, fusha aviacionit

Details

  • Price: 169.200€
  • Size: 113 m²
  • Rooms: 3
  • Bathroom: 1
  • Type: Apartament
  • Status: shitje
  • Kati: 10
  • Mob / Tel: 0696045237

Description

Shitet, Apartament 2+1, Fusha e Aviacionit, Tiranë.
• Sipërfaqja bruto: 112.8 m2
• Sipërfaqja neto: 94 m2
• Kati 10
• Ambient ndenjie
• Ambient gatimi
• 2 Dhoma Gjumi
• 1 Tualet
• 1 Ballkon
• Fazë ndërtimi (karabina)
• Fasadë e ventiluar
• Me ashensor
Prestige63976

  • Address fusha aviacionit
  • City Tirane
  • Area 7 Fusha Aviacionit

Contact Information

View Listings

Enquire About This Property

Compare listings

Compare
Donaldo Verlaci
  • Donaldo Verlaci