SHITET APARTAMENT 1+1 DHE GARSONIERE NE LAPRAKE 189.000 EURO

  • 189.000€
11 Laprake | Dogana, Laprakë, Rruga Lord Bajroni, Blloku Gintash, Njësia Bashkiake Nr. 11, Tirana, Tirana Municipality, Tirana County, Central Albania, 1025, Albania
shitje
11 Laprake | Dogana, Laprakë, Rruga Lord Bajroni, Blloku Gintash, Njësia Bashkiake Nr. 11, Tirana, Tirana Municipality, Tirana County, Central Albania, 1025, Albania
  • 189.000€

Details

  • Price: 189.000€
  • Size: 118 m²
  • Rooms: 3
  • Bathrooms: 2
  • Type: Apartament, garsonier
  • Status: shitje
  • Kati: 5
  • Mob / Tel: 0676722221

Description

🏡 SHITET APARTAMENT 1+1 DHE GARSONIERE – KOMPLEKSI “AURA”, LAPRRAKË

📍 Prona ndodhet në kompleksin modern “Aura”, në zonën e Laprakës, një nga zonat më të kërkuara dhe në zhvillim të Tiranës. Kompleksi ofron standard të lartë ndërtimi, organizim të rregullt dhe akses të lehtë në rrugët kryesore.

✨ Detaje të pronës:
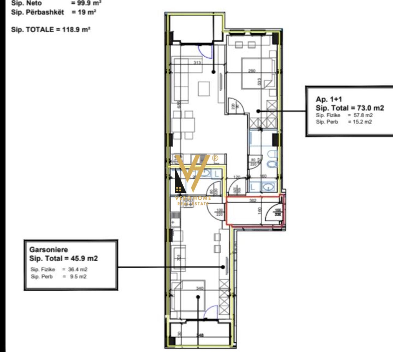
▫️ Sipërfaqe totale bruto: 118.9 m²
▫️ Sipërfaqe totale neto: 99.9 m²
▫️ Kati 5
▫️ Planimetri e rregullt
▫️ Orientim: Lindje – Perëndim
▫️ Kompleks i ri, me cilësi të lartë ndërtimi dhe administrim bashkëkohor

🏠 Garsonierja:
▫️ Sipërfaqe bruto: 45.9 m²
▫️ Sipërfaqe neto: 36.4 m²
▫️ Me tualet

🏠 Apartamenti 1+1:
▫️ Sipërfaqe bruto: 73 m²
▫️ Sipërfaqe neto: 57.8 m²
▫️ Me tualet dhe ballkon

💶Cmimi: 189.000 €

📞 Për më shumë informacion:
📱 067 672 2221
🔖 Kodi: E700

  • Address Laprakë, Rruga Lord Bajroni, Blloku Gintash, Njësia Bashkiake Nr. 11, Tirana, Tirana Municipality, Tirana County, Central Albania, 1025, Albania
  • City Tirane
  • Area 11 Laprake | Dogana

Contact Information

View Listings
VERO HOME REAL ESTATE

Enquire About This Property

Compare listings

Compare
VERO HOME REAL ESTATE
  • VERO HOME REAL ESTATE