Apartament per shitje

  • 103.000€
, Rruga Jordan Misja, Njësia Bashkiake Nr. 9, Tirana, Tirana Municipality, Tirana County, Central Albania, 1016, Albania
shitje
, Rruga Jordan Misja, Njësia Bashkiake Nr. 9, Tirana, Tirana Municipality, Tirana County, Central Albania, 1016, Albania
  • 103.000€

Details

  • Price: 103.000€
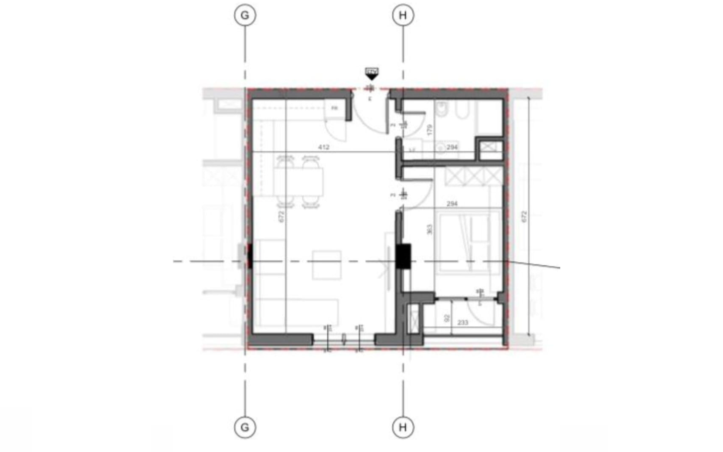
  • Size: 63 m²
  • Rooms: 2
  • Bathroom: 1
  • Type: Apartament
  • Status: shitje
  • Kati: 2
  • Mob / Tel: +355697008830

Description

Apartament per shitje- Rruga Jordan Misja, prane Universitetit Beder, Tirane. Apartamenti ka siperfaqe bruto 63 m2 dhe ka tipologji 1+1. Organizohet ne sallon-kuzhine, dhome gjumi, tualet dhe ballkon. Ndodhet ne katin e dyte. Objekti eshte ne ndertim. Cmimi 103000 euro. Për më shumë informacion ose një vizitë në pronë mos hezitoni të na kontaktoni! +355697008830

  • Address Rruga Jordan Misja, Njësia Bashkiake Nr. 9, Tirana, Tirana Municipality, Tirana County, Central Albania, 1016, Albania

Contact Information

View Listings

Enquire About This Property

Compare listings

Compare
Falcon.Consulting
  • Falcon.Consulting