Apartament ndodhet ne Sunset Residence, Green Coast Palase.
Informacion i pergjithshem:
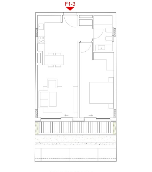
- Sipërfaqe totale 95.49 m2
- Siperfaqe neto 70.27 m2
- Siperfaqe verande 5.73 m2
- Kati i 1.
Organizimi:
- Ambjent ndenje + Gatimi
- 1 dhome gjumi
- 1 tualet
- Verande
- Depo 22.10 m2
- Post parkimi
Te dhena te tjera:
- Apartamenti eshte pjese e nje nder rezidencave me te mira te Jugut.
- Arkitekure moderne.
- Ndertim elitar me cilesi te larte ndertimi.
- Pozicion strategjik prane plazheve me te bukura te Rivieres.
- Perfundon ne fund te vitit.
- Depo private.
- Mundesi ideale per shtepi pushimi apo investim qeraje.
Cmimi i apartamentit : 331.542 euro
Cmimi per post parkimi: 30.000 euro
Cmimi i depos: 35.360 euro
Per me shume detaje me kontaktoni!
ID e pronës:73330